Beschrijving
Ceintuurstraat 50 in Landgraaf
Vraagprijs: € 295.000 euro k.k.
Aanvaarding: in overleg
De bezichtigingen zullen plaatsvinden op 15 en 17 december a.s.
Starters welke in de omgeving Landgraaf zoeken opgelet!!
Omschrijving:
Instapklare, monumentale woning met ruime woonkamer, tuinkamer en echte Amerikaanse veranda, overkapping met verlichting.
Keuken met apparatuur, vaste trap naar de zolder met daardoor 3 slaapkamers.
Grote tuin, gelegen op het westen met een centrale ligging.
INDELING:
Souterrain:
Verdeeld in twee ruimtes. Hier bevindt zich de wasmachine aansluiting en CV ketel.
Begane grond:
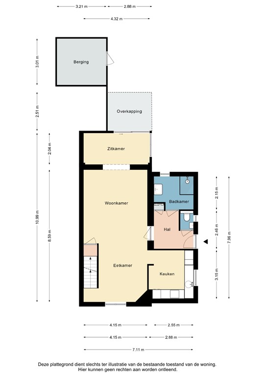
Via oprit naar entree. Hal met plavuizenvloer en geheel betegelde toiletruimte met hangcloset en fonteintje.
Woonkamer met tuinkamer voorzien van schuifpui met rolhor. (Raam woonkamer en schuifpui/raampartij in de tuinkamer is van kunststof en voorzien van HR++ glas) en geheel voorzien van laminaatvloer.
Keuken met keukeninstallatie in hoekopstelling o.a. voorzien van keramische kookplaat, afzuigkap, magnetron, oven, koelkast, diepvries, vaatwasser, apothekerskast en laminaatvloer. Badkamer met plavuizenvloer, doucheruimte (nieuw 2021), spiegel, vaste wastafel met badmeubel en design radiator.
Tuin:
De ruime tuin is gelegen op het westen, ca. 16 meter diep en 12 meter breed met tuinhuis en is tevens toegankelijk via zijpoort.
Het terras is aangelegd in 2018.
1e Verdieping:
Overloop met twee slaapkamers. Airco geplaatst in december 2020.
2e Verdieping:
Bereikbaar via vaste trap. Zolderkamer, bergruimte met dakraam voorzien van verduistering/rolgordijn.
Bijzonderheden:
-gevels: stucwerk vervangen, geverfd incl. boeiboorden (gedeeltelijk vervangen) in 2018/2020.
-deels houten kozijnen met dubbele beglazing / deels kunststof met HR++ glas
-woonoppervlakte 117 m2/ Perceel 354 m2
-inhoud 499 m3
-energielabel C
-bouwjaar 1913
-zolder en plat dak geïsoleerd
-combiketel van het merk Intergas HR uit 2010 (eigendom)
-meterkast, aardlek en overige aanpassingen electra d.d. 2018
-bitumen dak d.d. 2018
-zeer centraal gelegen, openbaar vervoer (bus en trein), scholen, medisch centrum en winkels op loopafstand. Doorgaande wegen om de hoek.
Voor de exacte maten verwijzen we naar de presentatie met de bijgevoegde plattegronden.
Nieuwsgierig geworden naar deze karakteristieke 2 onder 1 kapwoning uit 1913 met monumentaal karakter, 3 slaapkamers en een ruime tuin in Landgraaf?
Voor het maken van een afspraak kunt u contact opnemen met verkopend makelaar: Tom van Houtem (06-20269830)
Disclaimer;
* Alle maten zijn circa maten;
* Aan deze presentatie kunnen geen rechten worden ontleend;
* De waarborgsom/bankgarantie is 10% van de koopsom. De koper dient deze binnen 2 weken nadat het financieringsvoorbehoud is verlopen bij de desbetreffende notaris te deponeren;
* Koper is te allen tijde gerechtigd voor eigen rekening een bouwkundige keuring te (laten) verrichten dan wel andere adviseurs te raadplegen teneinde een goed inzicht te verkrijgen in de staat van onderhoud;
* Ter bescherming van de belangen van zowel koper als verkoper, wordt uitdrukkelijk gesteld dat een koopovereenkomst met betrekking tot deze onroerende zaak eerst dan tot stand komt nadat koper en verkoper de koopovereenkomst hebben getekend (“schriftelijkheidsvereiste”)
Plattegronden
Ceintuurstraat 50 Landgraaf - Kelder 2D.jpg
Ceintuurstraat 50 Landgraaf - Kelder 3D.jpg
Ceintuurstraat 50 Landgraaf - Begane grond 2D.jpg
Ceintuurstraat 50 Landgraaf - Begane grond 3D.jpg
Ceintuurstraat 50 Landgraaf - Verdieping 2D.jpg
Ceintuurstraat 50 Landgraaf - Verdieping 3D.jpg
Ceintuurstraat 50 Landgraaf - Zolder 2D.jpg
Ceintuurstraat 50 Landgraaf - Zolder 3D.jpg