Beschrijving
Cluysenaerstraat 11 Landgraaf.
Vraagprijs: € 275.000 euro k.k.
Aanvaarding: per direct
De bezichtigingen zullen plaatsvinden op 1 en 2 december a.s.
Starters opgelet!!
Ligging:
Rustig, aan verkeersluwe straat gelegen, goed onderhouden, half vrijstaande eengezinswoning met zolder, kelder, tuin, garage en carport gelegen in Landgraaf/ Schaesberg/ het Eikske.
INDELING
Entree:
Via oprit, geschikt voor het plaatsen van meerdere auto's, toegang tot entree.
Souterrain:
De goed afgewerkte provisiekelder, met plavuizenvloer en aansluitpunten was apparatuur. De provisiekelder biedt eventueel de mogelijkheid de kruipruimte te bereiken.
Begane grond:
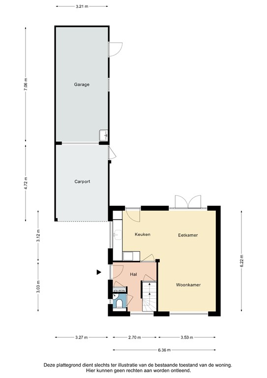
Ruime hal met garderobe en betegelde toiletruimte met zwevend toilet en fontein.
Via hal te bereiken woonkamer met uitstekend lichtinval, wanden in strak stucwerk, dubbele openslaande tuindeuren en een open keuken met moderne installatie in hoekopstelling. De keuken is voorzien van navolgend keukenapparatuur: granieten aanrechtblad -en achterwand, koelkast, vaatwasser, combimagnetron (2024), keramische kookplaat, valkscherm afzuigkap en verlaagd plafond met inbouwverlichting. De gehele begane grond is voorzien van een granietenvloer (natuursteen). De woonkamer en keuken beschikken over vloerverwarming.
Eerste verdieping:
Overloop met toegang tot drie goed afgewerkte slaapkamers, respectievelijk 11 m², 10 m² en 5 m², allen voorzien van laminaatvloer, wanden in fijnstructuur. Daarnaast beschikt de overloop over een inbouwkast en kan men middels de overloop de badkamer bereiken. De geheel betegelde badkamer is voorzien van halogeen inbouwverlichting, wandradiator, tweede zwevend toilet, douche met hardglazen douchedeur, wastafel met ombouwmeubel en frans balkon. Via vlizotrap toegang tot ruime, geïsoleerde zolderverdieping voorzien van een dakraam, alwaar de combi Cv-hr van het merk Nefit (bj 2001, eigendom) is gesitueerd. De zolder biedt, doormiddel van het plaatsen van een vaste trap, de mogelijkheid een extra slaapkamer te realiseren.
Tuin:
Via woonkamer, keuken en zijingang te bereiken, geheel omsloten, zonnige tuin met terras.
De tuin is circa 12 meter diep en biedt de mogelijkheid de naast het woonhuis gelegen garage te bereiken.
De garage is voorzien van een sectionaalpoort en is tevens te bereiken via de oprit.
Bijzonderheden:
- Zeer rustig, doch centraal gelegen;
- Nagenoeg geheel voorzien van kunststof kozijnen;
- Geheel voorzien van dubbelglas;
- Woonkamer en slaapkamer voorzien van airco resp. 5 kW en 3kW (2024)
- Isolatie van verdieping als zoldervloer;
- Gang plus alle slaapkamers nieuwe laminaat (2024)
- Energielabel F;
- Bouwjaar 1964;
- Woonoppervlakte 79 m2/ perceel 237 m2;
- Inhoud 367 m3;
- Nagenoeg geheel voorzien van rolluiken (deels elektrisch);
- De woning verkeert in zeer goede staat van onderhoud;
- Omgeven door groen en in de buurt van diverse voorzieningen, zoals sportpark Kaldeborn en
winkelcentrum Schaesberg;
- Het natuurgebied Strijthagen, Familiepark Mondo Verde en SnowWorld zijn op zeer korte afstand
gelegen;
- Nabij belangrijke uitvalswegen, waaronder de Parkstadring;
Voor de exacte maten verwijzen we naar de presentatie met de bijgevoegde plattegronden.
Voor het maken van een afspraak kunt u contact opnemen met verkopend makelaar: Tom van Houtem (06-20269830)
Disclaimer;
* Alle maten zijn circa maten;
* Aan deze presentatie kunnen geen rechten worden ontleend;
* De waarborgsom/bankgarantie is 10% van de koopsom. De koper dient deze binnen 2 weken nadat het financieringsvoorbehoud is verlopen bij de desbetreffende notaris te deponeren;
* Koper is te allen tijde gerechtigd voor eigen rekening een bouwkundige keuring te (laten) verrichten dan wel andere adviseurs te raadplegen teneinde een goed inzicht te verkrijgen in de staat van onderhoud;
* Ter bescherming van de belangen van zowel koper als verkoper, wordt uitdrukkelijk gesteld dat een koopovereenkomst met betrekking tot deze onroerende zaak eerst dan tot stand komt nadat koper en verkoper de koopovereenkomst hebben getekend (“schriftelijkheidsvereiste”)
Plattegronden
Cluysenaerstraat 11 Landgraaf - Kelder 2D.jpg
Cluysenaerstraat 11 Landgraaf - Kelder 3D.jpg
Cluysenaerstraat 11 Landgraaf - Begane grond 2D.jpg
Cluysenaerstraat 11 Landgraaf - Begane grond 3D.jpg
Cluysenaerstraat 11 Landgraaf - Verdieping 2D.jpg
Cluysenaerstraat 11 Landgraaf - Verdieping 3D.jpg
Cluysenaerstraat 11 Landgraaf - Zolder 2D.jpg
Cluysenaerstraat 11 Landgraaf - Zolder 3D.jpg