Beschrijving
Bouwerweg 12 Simpelveld
Vraagprijs: € 349.500 euro k.k.
Aanvaarding: per direct
Bezichtigingen zullen plaats vinden op 29 en 30 oktober a.s.
Starters opgelet!!
In een geliefde woonomgeving op de ''Huls'' in Gemeente Simpelveld is gelegen deze instapklare gemoderniseerde geschakelde 2-onder-1-kapwoning uit 1968 met 3 slaapkamers, garage, aanbouw met open keuken een een onderhoudsvriendelijke tuin met overkapping met zitgedeelte gelegen op het Zuiden.
Ligging:
De woning is gelegen in de glooiende heuvels van het bij Simpelveld behorend, zeer geliefd buurtschap, “Huls”.
De “Huls ”staat bekend om zijn prachtige vergezichten in combinatie met een centrale ligging t.o.v. steden zoals Heerlen, Aken en Maastricht.
INDELING
Souterrain:
In gebruik als provisiekelder verdeeld in 2 afzonderlijke ruimten waar ook de huur Cv installatie uit 2017 gesitueerd is van de firma Hesi.
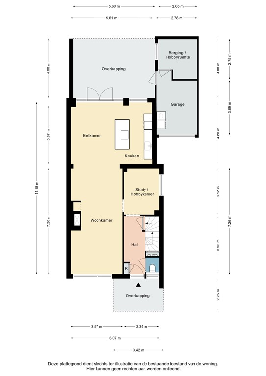
Begane grond:
Entree/hal met opgaande trap naar de verdieping, betegeld toilet met fonteintje en geeft toegang tot de hobby en werkruimte.
Vanuit deze ruimte kom je in de ruime lichte woonkamer voorzien van een aanbouw met open keuken uit 2024 voorzien van alle noodzakelijk inbouwapparatuur.
De woonkamer geeft toegang tot de onderhoudsvriendelijke tuin voorzien van een overkapping welke gelegen is op het zuiden. Tevens ook toegang tot de stenen berging welke je kan gebruiken als bijkeuken. De tuin is aan de achterzijde voorzien van een houten luxe tuinhuis met zitgedeelte.
Lees meer onder het kopje bijzonderheden welke toevoegingen in de afgelopen periode gebeurt zijn.
Eerste verdieping:
Overloop welke toegang geeft tot de 3 ruime slaapkamers en de betegelde badkamer welke voorzien is van inloopdouche, wastafel en een 2e toilet.
Isolatiepakket:
Het huidige energielabel D dateert uit maart 2020 en is door de uitgevoerde verduurzamingsmaatregelen door de verkopers in de afgelopen periode niet meer actueel maar wel geldig. Voor de kopers zou het wellicht aantrekkelijk kunnen zijn om een nieuw energielabel aan te vragen t.b.v. van een rentekorting bij de hypotheekverstrekker.
Bijzonderheden:
- Instapklare gemoderniseerde geschakelde 2 onder 1 kap woning gelegen te buurtschap ''Huls''
- Bouwjaar 1968
- Perceeloppervlakte 313 m2/ inhoud 500 m3
- Gebruiksoppervlakte wonen 114 m2
- Energielabel D
- CV installatie uit 2017 huur € 45,50 euro per maand van de firma Hesi
- De gevel is in 2020 gezandstraald, slechte voegen vervangen en geïmpregneerd en in 2022 opnieuw geverfd
- 2020 kunststof kozijnen met dubbele beglazing op de begane grond + een nieuwe kunststof voordeur
- 2020: geheel nieuw dak
- 2021: nieuwe badkamer
- 2022: gehele achtertuin opnieuw aangelegd
- 2022: 12 zonnepanelen geplaatst/ 390 wp per paneel (eigendom)
- 2024: nieuwe keuken, alle elektra vervangen + een nieuwe meterkast, alles gestuct, overal nieuwe plafonds + geïsoleerd.
Oprit opgegraven voor nieuwe riolering. Gevelfolie geplaatst buitenmuur kelder plus het realiseren van een nieuw toilet
-2025: boven nieuwe deuren geplaatst/ een nieuwe laag bitumen gebrand op de aanbouw
Voor de exacte maten verwijzen we naar de presentatie met de bijgevoegde plattegronden.
Voor het maken van een afspraak kunt u contact opnemen met verkopend makelaar: Tom van Houtem (06-20269830).
Volg ons op Facebook en/ of instagram om previews te zien van al het nieuwe aanbod.
Disclaimer;
* Alle maten zijn circa maten;
* Aan deze presentatie kunnen geen rechten worden ontleend;
* De waarborgsom/bankgarantie is 10% van de koopsom. De koper dient deze binnen 2 weken nadat het financieringsvoorbehoud is verlopen bij de desbetreffende notaris te deponeren;
* Koper is te allen tijde gerechtigd voor eigen rekening een bouwkundige keuring te (laten) verrichten dan wel andere adviseurs te raadplegen teneinde een goed inzicht te verkrijgen in de staat van onderhoud;
* Ter bescherming van de belangen van zowel koper als verkoper, wordt uitdrukkelijk gesteld dat een koopovereenkomst met betrekking tot deze onroerende zaak eerst dan tot stand komt nadat koper en verkoper de koopovereenkomst hebben getekend (“schriftelijkheidsvereiste")
Plattegronden
Bouwerweg 12 Simpelveld - Kelder 2D.jpg
Bouwerweg 12 Simpelveld - Kelder 3D.jpg
Bouwerweg 12 Simpelveld - Begane grond 2D.jpg
Bouwerweg 12 Simpelveld - Begane grond 3D.jpg
Bouwerweg 12 Simpelveld - Berging 2D.jpg
Bouwerweg 12 Simpelveld - Berging 3D.jpg
Bouwerweg 12 Simpelveld - Verdieping 2D.jpg
Bouwerweg 12 Simpelveld - Verdieping 3D.jpg