Beschrijving
Tenelenweg 172-A Voerendaal
Vraagprijs: € 237.000,- euro k.k.
Aanvaarding: in overleg
OF
Vraagprijs: € 329.000,- euro k.k dit is de vraagprijs inclusief de afkoop van de erfpachtcanon, dit biedt mogelijkheden voor koper(s) t.b.v. financiering met NHG en het (eventueel) aanvragen van een starterslening.
Locatie:
Op goede en in geliefde woonwijk gelegen op de 1e en 2e verdieping de half vrijstaande bovenwoning (type B3 maisonnette), met o.a. dakterras, separate berging op begane grond en eigen parkeerplaats. Verkeert in uitstekende staat van onderhoud en is instap- klaar. De woning volledig geïsoleerd (energielabel A) en is centraal gelegen t.o.v. uitvalswegen, winkels, natuurgebied en scholen.
INDELING:
Begane grond:
Separaat gelegen berging (ca. 6m²) en een eigen parkeerplaats.
1e verdieping: (geheel v.v. vloerverwarming)
Entree/hal met meterkast (3 fase aansluiting aanwezig) en moderne toiletruimte voorzien van een zwevend closet en fontein. De ruime living (6,30 m x 5,00 m) is v.v. een pvc vloer, vanuit de woonkamer heeft men een open verbinding naar de keuken en middels openslaande deur toegang tot het dakterras.
De moderne open keuken (2,92 m x 2,08 m) is v.v. navolgende apparatuur: 5 pits gaskookplaat, rvs afzuigkap, vaatwasser (2025), oven en koelkast (2025). Vanuit de keuken te bereiken bijkeuken alwaar standplaats CV- installatie (Remeha Avanta, 2012, eigendom) en aansluitingen wasapparatuur.
Dakterras:
Het terras is ca. 18 m2 en is op het zuidoosten gelegen.
2e verdieping:
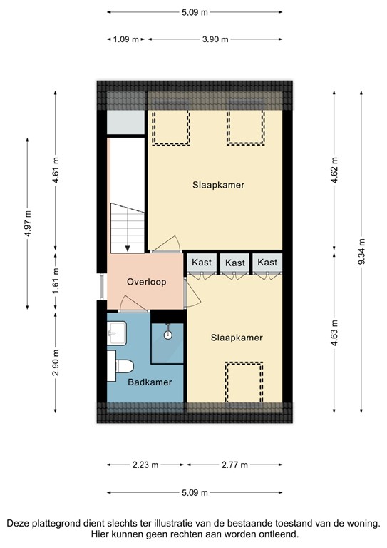
Overloop biedt toegang tot 2 slaapkamers en badkamer. Slaapkamer I (4,63 m x 2,87 m) & slaapkamer II (4,61 m x 4,00 m) zijn beide v.v. een pvc vloer en over de totale breedte voorzien van een inbouwkast. De moderne badkamer is voorzien van vloerverwarming (2,90 m x 2,20 m) v.v. inloopdouche, vaste wastafel, zwevend closet en een design radiator.
Zolder:
Middels vlizotrap te bereiken ruime bergzolder.
Bijzonderheden:
• Bouwjaar 2012
• Woonoppervlak 87 m2
• Energielabel A
• Buiten zonwering op dakramen van de slaapkamers gelegen op 2e verdieping
• Pvc vloeren in gehele woning
• Servicekosten VVE € 109,33,- per maand
• Erfpachtcanon €249,97,- per maand (volledig fiscaal aftrekbaar)
• Ligging: in centrum, nabij invalswegen richting Maastricht, Eindhoven en Aken
• Installatie: cv-ketel (eigendom 2012)
Voor de exacte maten in deze presentatie zie bijgevoegde plattegronden.
Voor het maken van een afspraak kunt u contact opnemen met verkopend makelaar: Tom van Houtem (06-20269830).
Disclaimer;
* Alle maten zijn circa maten;
* Aan deze presentatie kunnen geen rechten worden ontleend;
* De waarborgsom/bankgarantie is 10% van de koopsom. De koper dient deze binnen 2 weken nadat het financieringsvoorbehoud is verlopen bij de desbetreffende notaris te deponeren;
* Koper is te allen tijde gerechtigd voor eigen rekening een bouwkundige keuring te (laten) verrichten dan wel andere adviseurs te raadplegen teneinde een goed inzicht te verkrijgen in de staat van onderhoud;
* Ter bescherming van de belangen van zowel koper als verkoper, wordt uitdrukkelijk gesteld dat een koopovereenkomst met betrekking tot deze onroerende zaak eerst dan tot stand komt nadat koper en verkoper de koopovereenkomst hebben getekend (“schriftelijkheidsvereiste”)
Plattegronden
Tenelenweg 172 A Voerendaal - 1e Verdieping 2D.jpg
Tenelenweg 172 A Voerendaal - 1e Verdieping 3D.jpg
Tenelenweg 172 A Voerendaal - 2e Verdieping 2D.jpg
Tenelenweg 172 A Voerendaal - 2e Verdieping 3D.jpg
Tenelenweg 172 A Voerendaal - Zolder 2D.jpg
Tenelenweg 172 A Voerendaal - Zolder 3D.jpg
Tenelenweg 172 A Voerendaal - Berging 2D.jpg
Tenelenweg 172 A Voerendaal - Berging 3D.jpg